【クラモア】もっと、わたしらしい暮らしを。- presented by STARTS

【カウンターキッチン付きの賃貸物件】兵庫県神戸市垂水区の賃貸(賃貸マンション・アパート・一戸建て)

設定条件

選択中の地域/路線・駅

神戸市垂水区

詳細条件

カウンターキッチン

ライフシーンに合う条件を設定する

物件種別

賃料

間取り

専有面積

徒歩分

築年数

キーワードで絞り込む

人気のこだわり条件

検索結果一覧

検索条件

神戸市垂水区

絞り込み条件

カウンターキッチン

チェックした物件をまとめて

195 部屋( 105 棟)

表示棟数

並び替え

  • 賃貸アパート セジュール福田

    外観

    賃料: 8.4万円

    兵庫県神戸市垂水区福田1丁目

    JR山陽本線 垂水駅   バス9分 「クラブ前」 徒歩4分
    山陽電鉄本線 山陽垂水駅 バス9分クラブ前 徒歩4分
    神戸市営地下鉄西神山手線 名谷駅 バス26分クラブ前 徒歩4分

    築8年(2017年10月築)

    掲載物件 1

    間取り図 賃料(管理費等) 敷/礼/保 間取り
    専有面積
    お気に入り
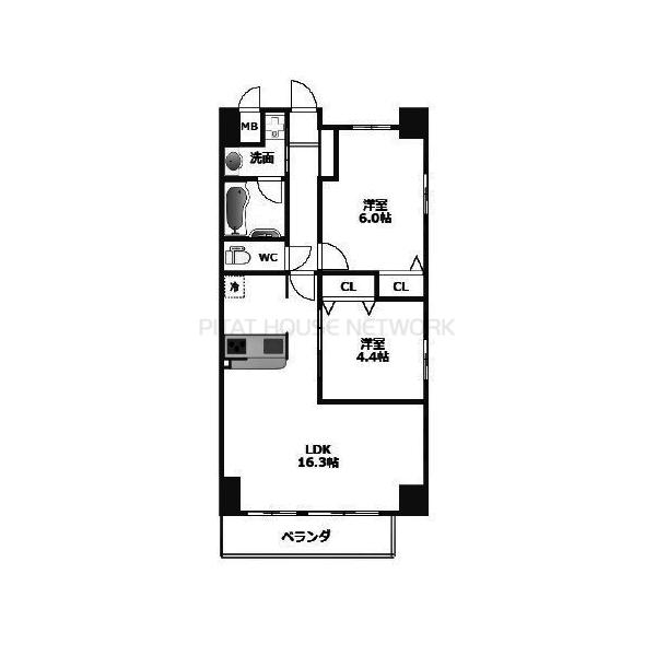
    間取図(平面図)
    間取図(平面図)

    2階

    8.4万円

    (管理費等:6,000円)

    3万円/
    15万円/
    -

    1LDK

    42.11㎡

    詳細を見る お問合せ(無料)
    • バス・トイレ別
    • 2階以上
    • 即入居可
  • 賃貸アパート 神戸市垂水区五色山アパート

    外観

    賃料: 8.4万円

    兵庫県神戸市垂水区五色山2丁目

    JR山陽本線 垂水駅 徒歩6分
    山陽電鉄本線 山陽垂水駅 徒歩6分
    山陽電鉄本線 霞ヶ丘駅 徒歩12分

    築9年(2016年01月築)

    掲載物件 1

    間取り図 賃料(管理費等) 敷/礼/保 間取り
    専有面積
    お気に入り

    1階

    8.4万円

    (管理費等:6,000円)

    8.4万円/
    16.8万円/
    -

    2LDK

    42.72㎡

    詳細を見る お問合せ(無料)
    • 角部屋
    • バス・トイレ別
    • 即入居可
  • 賃貸アパート エルミタージュ

    外観

    賃料: 8.4万円

    兵庫県神戸市垂水区清水が丘1丁目

    JR山陽本線 垂水駅   バス9分 「清水が丘1丁目」 徒歩2分

    築12年(2013年03月築)

    掲載物件 1

    間取り図 賃料(管理費等) 敷/礼/保 間取り
    専有面積
    お気に入り
    間取図(平面図)
    間取図(平面図)

    2階

    8.4万円

    (管理費等:6,000円)

    2万円/
    14万円/
    -

    2LDK

    59.87㎡

    詳細を見る お問合せ(無料)
    • 南向き
    • 角部屋
    • バス・トイレ別
    • 2階以上
  • 賃貸アパート エルミタージュ(202)

    外観

    賃料: 8.4万円

    兵庫県神戸市垂水区清水が丘1丁目

    バス 山陽バス「舞子墓園前」バス停 7分

    築12年(2013年03月築)

    掲載物件 1

    間取り図 賃料(管理費等) 敷/礼/保 間取り
    専有面積
    お気に入り

    2階

    8.4万円

    (管理費等:6,000円)

    2万円/
    14万円/
    -

    2DK

    59.87㎡

    詳細を見る お問合せ(無料)
    • 角部屋
    • バス・トイレ別
    • 2階以上
  • 賃貸マンション ワコーレヴィータ五色山

    外観

    賃料: 6.6万円

    兵庫県神戸市垂水区五色山1丁目

    JR山陽本線 垂水駅 徒歩5分
    山陽電鉄本線 霞ヶ丘駅 徒歩15分
    JR山陽本線 舞子駅 徒歩28分

    築24年(2001年06月築)

    掲載物件 1

    間取り図 賃料(管理費等) 敷/礼/保 間取り
    専有面積
    お気に入り
    間取図(平面図)
    間取図(平面図)

    1階

    6.6万円

    (管理費等:6,000円)

    -/
    -/
    -

    1LDK

    34.21㎡

    詳細を見る お問合せ(無料)
    • 角部屋
    • バス・トイレ別
  • 賃貸アパート パルス ミノール

    外観

    賃料: 7.7万円

    兵庫県神戸市垂水区陸ノ町

    JR山陽本線 垂水駅 徒歩5分
    山陽電鉄本線 山陽垂水駅 徒歩5分
    山陽電鉄本線 東垂水駅 徒歩14分

    築7年(2017年12月築)

    掲載物件 1

    間取り図 賃料(管理費等) 敷/礼/保 間取り
    専有面積
    お気に入り
    間取図(平面図)
    間取図(平面図)

    2階

    7.7万円

    (管理費等:6,500円)

    3万円/
    15万円/
    -

    1R

    31.47㎡

    詳細を見る お問合せ(無料)
    • 南向き
    • 角部屋
    • バス・トイレ別
    • 2階以上
  • 賃貸マンション パレセゾン

    外観

    賃料: 9.9万円

    兵庫県神戸市垂水区川原2丁目

    JR山陽本線 垂水駅 徒歩7分
    神戸市営地下鉄西神山手線 名谷駅 徒歩50分
    山陽電鉄本線 東垂水駅 徒歩10分

    築20年(2005年03月築)

    掲載物件 1

    間取り図 賃料(管理費等) 敷/礼/保 間取り
    専有面積
    お気に入り
    間取図(平面図)
    間取図(平面図)

    3階

    9.9万円

    (管理費等:7,000円)

    9.9万円/
    25万円/
    -

    2LDK

    58.69㎡

    詳細を見る お問合せ(無料)
    • 南向き
    • バス・トイレ別
    • 2階以上
    • 即入居可
  • 賃貸アパート Creer RiviereIII

    外観

    賃料: 13.2万円14万円

    兵庫県神戸市垂水区川原1丁目

    JR山陽本線 垂水駅 徒歩7分
    山陽電鉄本線 山陽垂水駅 徒歩7分
    山陽電鉄本線 東垂水駅 徒歩7分

    築2年(2023年07月築)

    掲載物件 1

    間取り図 賃料(管理費等) 敷/礼/保 間取り
    専有面積
    お気に入り
    間取図(平面図)
    間取図(平面図)

    3階

    13.2万円

    (管理費等:8,000円)

    13.2万円/
    13.2万円/
    -

    2LDK

    57.86㎡

    詳細を見る お問合せ(無料)
    • 角部屋
    • バス・トイレ別
    • 2階以上
  • 賃貸アパート パークサイド歌敷山

    外観

    賃料: 9.5万円

    兵庫県神戸市垂水区歌敷山2丁目

    JR山陽本線 垂水駅 徒歩15分
    JR山陽本線 舞子駅 徒歩9分
    山陽電鉄本線 霞ヶ丘駅 徒歩10分

    築6年(2019年06月築)

    掲載物件 1

    間取り図 賃料(管理費等) 敷/礼/保 間取り
    専有面積
    お気に入り
    間取図(平面図)
    間取図(平面図)

    1階

    9.5万円

    (管理費等:8,000円)

    3万円/
    20万円/
    -

    2LDK

    51.71㎡

    詳細を見る お問合せ(無料)
    • バス・トイレ別
  • 賃貸アパート ALEGRIA垂水霞ヶ丘

    外観

    賃料: 5.2万円5.4万円

    兵庫県神戸市垂水区五色山7丁目

    山陽電鉄本線 霞ヶ丘駅 徒歩3分
    JR山陽本線 舞子駅 徒歩10分
    JR山陽本線 垂水駅 徒歩18分

    築9年(2016年08月築)

    掲載物件 2

    間取り図 賃料(管理費等) 敷/礼/保 間取り
    専有面積
    お気に入り
    間取図(平面図)
    間取図(平面図)

    1階

    5.2万円

    (管理費等:8,000円)

    -/
    -/
    -

    1K

    26.44㎡

    詳細を見る お問合せ(無料)
    • 角部屋
    • バス・トイレ別
    • ペット相談可
    • 即入居可
    間取図(平面図)
    間取図(平面図)

    2階

    5.4万円

    (管理費等:8,000円)

    -/
    -/
    -

    1K

    26.44㎡

    詳細を見る お問合せ(無料)
    • 角部屋
    • バス・トイレ別
    • ペット相談可
    • 2階以上
    • 即入居可
  • 賃貸マンション パインコート平磯

    外観

    賃料: 10.2万円

    兵庫県神戸市垂水区平磯1丁目

    JR山陽本線 垂水駅 徒歩9分
    山陽電鉄本線 山陽垂水駅 徒歩9分
    山陽電鉄本線 東垂水駅 徒歩5分

    築14年(2011年02月築)

    掲載物件 1

    間取り図 賃料(管理費等) 敷/礼/保 間取り
    専有面積
    お気に入り
    間取図(平面図)
    間取図(平面図)

    2階

    10.2万円

    (管理費等:8,000円)

    -/
    20.4万円/
    -

    1SLDK

    51.14㎡

    詳細を見る お問合せ(無料)
    • 南向き
    • バス・トイレ別
    • 2階以上
  • 賃貸マンション ソフィア垂水高丸ハーティスクエア

    外観

    賃料: 10万円

    兵庫県神戸市垂水区高丸7丁目

    JR山陽本線 垂水駅 徒歩18分
    山陽電鉄本線 山陽垂水駅 徒歩18分
    山陽電鉄本線 霞ヶ丘駅 徒歩30分

    築22年(2003年02月築)

    掲載物件 1

    間取り図 賃料(管理費等) 敷/礼/保 間取り
    専有面積
    お気に入り
    間取図(平面図)
    間取図(平面図)

    7階

    10万円

    (管理費等:8,000円)

    -/
    20万円/
    -

    2SLDK

    59.93㎡

    詳細を見る お問合せ(無料)
    • 南向き
    • 角部屋
    • バス・トイレ別
    • 2階以上
    • 即入居可
  • 賃貸マンション コモンパレス清水が丘

    外観

    賃料: 7.4万円

    兵庫県神戸市垂水区清水が丘1丁目

    JR山陽本線 舞子駅   バス8分 「清水が丘1丁目」 徒歩2分
    JR山陽本線 垂水駅 バス10分清水が丘1丁目 徒歩2分
    神戸市営地下鉄西神山手線 学園都市駅 バス11分清水が丘1丁目 徒歩2分

    築29年(1996年04月築)

    掲載物件 1

    間取り図 賃料(管理費等) 敷/礼/保 間取り
    専有面積
    お気に入り
    間取図(平面図)
    間取図(平面図)

    4階

    7.4万円

    (管理費等:8,000円)

    -/
    -/
    -

    3LDK

    68.0㎡

    詳細を見る お問合せ(無料)
    • 南向き
    • 角部屋
    • バス・トイレ別
    • 2階以上
    • 即入居可
  • 賃貸マンション マリタイム舞子

    外観

    賃料: 9万円

    兵庫県神戸市垂水区東舞子町

    JR山陽本線 舞子駅 徒歩1分
    山陽電鉄本線 舞子公園駅 徒歩3分
    JR山陽本線 垂水駅 徒歩29分

    築34年(1991年05月築)

    掲載物件 1

    間取り図 賃料(管理費等) 敷/礼/保 間取り
    専有面積
    お気に入り
    間取図(平面図)
    間取図(平面図)

    6階

    9万円

    (管理費等:8,000円)

    -/
    30万円/
    -

    2LDK

    66.6㎡

    詳細を見る お問合せ(無料)
    • 南向き
    • 角部屋
    • バス・トイレ別
    • 2階以上
    • 即入居可
  • 賃貸マンション パームスクェアジェームス山

    外観

    賃料: 15.99万円

    兵庫県神戸市垂水区青山台7丁目

    JR山陽本線 垂水駅   バス14分 「美山台」 徒歩2分
    山陽電鉄本線 滝の茶屋駅 徒歩22分
    山陽電鉄本線 山陽塩屋駅 徒歩26分

    築37年(1988年07月築)

    掲載物件 1

    間取り図 賃料(管理費等) 敷/礼/保 間取り
    専有面積
    お気に入り
    間取図(平面図)
    間取図(平面図)

    8階

    15.99万円

    (管理費等:8,000円)

    -/
    15.99万円/
    -

    4LDK

    78.49㎡

    詳細を見る お問合せ(無料)
    • 南向き
    • バス・トイレ別
    • 2階以上
    • 即入居可
  • 賃貸マンション エクセレントガーデンヒルズ A棟

    外観

    賃料: 9.4万円13.7万円

    兵庫県神戸市垂水区桃山台2丁目

    JR山陽本線 垂水駅   バス13分 「桃山台南口」 徒歩4分
    山陽電鉄本線 山陽塩屋駅 徒歩34分
    JR山陽本線 垂水駅 徒歩47分

    築1年(2024年10月築)

    掲載物件 19

    間取り図 賃料(管理費等) 敷/礼/保 間取り
    専有面積
    お気に入り
    間取図(平面図)
    間取図(平面図)

    1階

    11.8万円

    (管理費等:8,500円)

    -/
    11.8万円/
    -

    2LDK

    65.06㎡

    詳細を見る お問合せ(無料)
    • バス・トイレ別
    • ペット相談可
    • 即入居可
    間取図(平面図)
    間取図(平面図)

    1階

    12.5万円

    (管理費等:8,500円)

    -/
    12.5万円/
    -

    2LDK

    60.72㎡

    詳細を見る お問合せ(無料)
    • バス・トイレ別
    • ペット相談可
    間取図(平面図)
    間取図(平面図)

    1階

    12.9万円

    (管理費等:8,500円)

    -/
    12.9万円/
    -

    2LDK

    63.52㎡

    詳細を見る お問合せ(無料)
    • バス・トイレ別
    • ペット相談可
    • 即入居可
    間取図(平面図)
    間取図(平面図)

    2階

    9.4万円

    (管理費等:8,500円)

    -/
    9.4万円/
    -

    1LDK

    44.87㎡

    詳細を見る お問合せ(無料)
    • バス・トイレ別
    • ペット相談可
    • 2階以上
    • 即入居可
    間取図(平面図)
    間取図(平面図)

    2階

    9.4万円

    (管理費等:8,500円)

    -/
    9.4万円/
    -

    1LDK

    44.87㎡

    詳細を見る お問合せ(無料)
    • バス・トイレ別
    • ペット相談可
    • 2階以上
    • 即入居可
    間取図(平面図)
    間取図(平面図)

    2階

    9.5万円

    (管理費等:8,500円)

    -/
    9.5万円/
    -

    1LDK

    44.87㎡

    詳細を見る お問合せ(無料)
    • バス・トイレ別
    • ペット相談可
    • 2階以上
    • 即入居可
    間取図(平面図)
    間取図(平面図)

    2階

    9.5万円

    (管理費等:8,500円)

    -/
    9.5万円/
    -

    1LDK

    45.02㎡

    詳細を見る お問合せ(無料)
    • バス・トイレ別
    • ペット相談可
    • 2階以上
    • 即入居可
    間取図(平面図)
    間取図(平面図)

    2階

    12.4万円

    (管理費等:8,500円)

    -/
    12.4万円/
    -

    2LDK

    64.56㎡

    詳細を見る お問合せ(無料)
    • バス・トイレ別
    • ペット相談可
    • 2階以上
    • 即入居可
    間取図(平面図)
    間取図(平面図)

    2階

    12.4万円

    (管理費等:8,500円)

    -/
    12.4万円/
    -

    2LDK

    65.06㎡

    詳細を見る お問合せ(無料)
    • バス・トイレ別
    • ペット相談可
    • 2階以上
    • 即入居可
    間取図(平面図)
    間取図(平面図)

    2階

    12.4万円

    (管理費等:8,500円)

    -/
    12.4万円/
    -

    2LDK

    65.06㎡

    詳細を見る お問合せ(無料)
    • バス・トイレ別
    • ペット相談可
    • 2階以上
    • 即入居可
    間取図(平面図)
    間取図(平面図)

    2階

    12.4万円

    (管理費等:8,500円)

    -/
    12.4万円/
    -

    2LDK

    65.06㎡

    詳細を見る お問合せ(無料)
    • バス・トイレ別
    • ペット相談可
    • 2階以上
    • 即入居可
    間取図(平面図)
    間取図(平面図)

    2階

    13万円

    (管理費等:8,500円)

    -/
    13万円/
    -

    2LDK

    65.78㎡

    詳細を見る お問合せ(無料)
    • バス・トイレ別
    • ペット相談可
    • 2階以上
    • 即入居可
    間取図(平面図)
    間取図(平面図)

    2階

    13万円

    (管理費等:8,500円)

    -/
    13万円/
    -

    2LDK

    60.72㎡

    詳細を見る お問合せ(無料)
    • バス・トイレ別
    • ペット相談可
    • 2階以上
    • 即入居可
    間取図(平面図)
    間取図(平面図)

    2階

    13.4万円

    (管理費等:8,500円)

    -/
    13.4万円/
    -

    2LDK

    67.14㎡

    詳細を見る お問合せ(無料)
    • バス・トイレ別
    • ペット相談可
    • 2階以上
    • 即入居可
    間取図(平面図)
    間取図(平面図)

    3階

    12.6万円

    (管理費等:8,500円)

    -/
    12.6万円/
    -

    2LDK

    65.06㎡

    詳細を見る お問合せ(無料)
    • バス・トイレ別
    • ペット相談可
    • 2階以上
    • 即入居可
    間取図(平面図)
    間取図(平面図)

    3階

    12.6万円

    (管理費等:8,500円)

    -/
    12.6万円/
    -

    2LDK

    65.06㎡

    詳細を見る お問合せ(無料)
    • バス・トイレ別
    • ペット相談可
    • 2階以上
    • 即入居可
    間取図(平面図)
    間取図(平面図)

    3階

    13.3万円

    (管理費等:8,500円)

    -/
    13.3万円/
    -

    2LDK

    65.78㎡

    詳細を見る お問合せ(無料)
    • バス・トイレ別
    • ペット相談可
    • 2階以上
    • 即入居可
    間取図(平面図)
    間取図(平面図)

    3階

    13.3万円

    (管理費等:8,500円)

    -/
    13.3万円/
    -

    2LDK

    60.72㎡

    詳細を見る お問合せ(無料)
    • バス・トイレ別
    • ペット相談可
    • 2階以上
    • 即入居可
    間取図(平面図)
    間取図(平面図)

    3階

    13.7万円

    (管理費等:8,500円)

    -/
    13.7万円/
    -

    2LDK

    67.22㎡

    詳細を見る お問合せ(無料)
    • バス・トイレ別
    • ペット相談可
    • 2階以上
  • 賃貸アパート エクセレントガーデンヒルズ

    外観

    賃料: 6.9万円10.5万円

    兵庫県神戸市垂水区桃山台2丁目

    山陽電鉄本線 山陽塩屋駅 徒歩34分
    JR山陽本線 塩屋駅 徒歩34分
    山陽電鉄本線 滝の茶屋駅 徒歩35分

    築1年(2024年10月築)

    掲載物件 4

    間取り図 賃料(管理費等) 敷/礼/保 間取り
    専有面積
    お気に入り
    間取図(平面図)
    間取図(平面図)

    1階

    6.9万円

    (管理費等:8,500円)

    -/
    8.9万円/
    -

    1LDK

    44.87㎡

    詳細を見る お問合せ(無料)
    • バス・トイレ別
    • ペット相談可
    • 即入居可
    間取図(平面図)
    間取図(平面図)

    1階

    9.8万円

    (管理費等:8,500円)

    -/
    11.8万円/
    -

    2LDK

    65.06㎡

    詳細を見る お問合せ(無料)
    • バス・トイレ別
    • ペット相談可
    • 即入居可
    間取図(平面図)
    間取図(平面図)

    2階

    7.4万円

    (管理費等:8,500円)

    -/
    7.4万円/
    -

    1LDK

    44.87㎡

    詳細を見る お問合せ(無料)
    • バス・トイレ別
    • ペット相談可
    • 2階以上
    • 即入居可
    間取図(平面図)
    間取図(平面図)

    2階

    10.5万円

    (管理費等:8,500円)

    -/
    10.5万円/
    -

    2LDK

    61.74㎡

    詳細を見る お問合せ(無料)
    • 角部屋
    • バス・トイレ別
    • ペット相談可
    • 2階以上
    • 即入居可
  • 賃貸マンション エクセレントガーデンヒルズ B棟

    外観

    賃料: 12.5万円13.9万円

    兵庫県神戸市垂水区桃山台2丁目

    JR山陽本線 垂水駅   バス10分 「桃山台南口」 徒歩4分
    JR山陽本線 塩屋駅 徒歩35分
    JR山陽本線 垂水駅 徒歩47分

    築1年(2024年10月築)

    掲載物件 10

    間取り図 賃料(管理費等) 敷/礼/保 間取り
    専有面積
    お気に入り
    間取図(平面図)
    間取図(平面図)

    1階

    13.1万円

    (管理費等:8,500円)

    -/
    13.1万円/
    -

    2LDK

    60.43㎡

    詳細を見る お問合せ(無料)
    • バス・トイレ別
    • ペット相談可
    • 即入居可
    間取図(平面図)
    間取図(平面図)

    2階

    12.5万円

    (管理費等:8,500円)

    -/
    12.5万円/
    -

    2LDK

    61.74㎡

    詳細を見る お問合せ(無料)
    • バス・トイレ別
    • ペット相談可
    • 2階以上
    • 即入居可
    間取図(平面図)
    間取図(平面図)

    2階

    12.8万円

    (管理費等:8,500円)

    -/
    12.8万円/
    -

    2LDK

    63.38㎡

    詳細を見る お問合せ(無料)
    • 南向き
    • バス・トイレ別
    • ペット相談可
    • 2階以上
    • 即入居可
    間取図(平面図)
    間取図(平面図)

    2階

    13万円

    (管理費等:8,500円)

    -/
    13万円/
    -

    2LDK

    64.22㎡

    詳細を見る お問合せ(無料)
    • 南向き
    • バス・トイレ別
    • ペット相談可
    • 2階以上
    • 即入居可
    間取図(平面図)
    間取図(平面図)

    2階

    13.6万円

    (管理費等:8,500円)

    -/
    13.6万円/
    -

    2LDK

    60.43㎡

    詳細を見る お問合せ(無料)
    • バス・トイレ別
    • ペット相談可
    • 2階以上
    • 即入居可
    間取図(平面図)
    間取図(平面図)

    2階

    13.6万円

    (管理費等:8,500円)

    -/
    13.6万円/
    -

    2LDK

    61.4㎡

    詳細を見る お問合せ(無料)
    • バス・トイレ別
    • ペット相談可
    • 2階以上
    • 即入居可
    間取図(平面図)
    間取図(平面図)

    3階

    12.9万円

    (管理費等:8,500円)

    -/
    12.9万円/
    -

    2LDK

    61.74㎡

    詳細を見る お問合せ(無料)
    • バス・トイレ別
    • ペット相談可
    • 2階以上
    • 即入居可
    間取図(平面図)
    間取図(平面図)

    3階

    13.2万円

    (管理費等:8,500円)

    -/
    13.2万円/
    -

    2LDK

    63.38㎡

    詳細を見る お問合せ(無料)
    • 南向き
    • バス・トイレ別
    • ペット相談可
    • 2階以上
    • 即入居可
    間取図(平面図)
    間取図(平面図)

    3階

    13.4万円

    (管理費等:8,500円)

    -/
    13.4万円/
    -

    2LDK

    64.22㎡

    詳細を見る お問合せ(無料)
    • 南向き
    • バス・トイレ別
    • ペット相談可
    • 2階以上
    • 即入居可
    間取図(平面図)
    間取図(平面図)

    3階

    13.9万円

    (管理費等:8,500円)

    -/
    13.9万円/
    -

    2LDK

    60.55㎡

    詳細を見る お問合せ(無料)
    • バス・トイレ別
    • ペット相談可
    • 2階以上
    • 即入居可
  • 賃貸マンション Avenir旭ヶ丘

    外観

    賃料: 10.1万円10.8万円

    兵庫県神戸市垂水区旭が丘1丁目

    JR山陽本線 垂水駅 徒歩9分
    山陽電鉄本線 山陽垂水駅 徒歩8分
    山陽電鉄本線 霞ヶ丘駅 徒歩17分

    新築(2025年06月築)

    掲載物件 4

    間取り図 賃料(管理費等) 敷/礼/保 間取り
    専有面積
    お気に入り
    間取図(平面図)
    間取図(平面図)

    1階

    10.3万円

    (管理費等:10,000円)

    3万円/
    -/
    -

    1LDK

    41.07㎡

    詳細を見る お問合せ(無料)
    • 角部屋
    • バス・トイレ別
    • ペット相談可
    • 即入居可
    間取図(平面図)
    間取図(平面図)

    1階

    10.3万円

    (管理費等:10,000円)

    3万円/
    -/
    -

    1LDK

    40.98㎡

    詳細を見る お問合せ(無料)
    • 角部屋
    • バス・トイレ別
    • ペット相談可
    • 即入居可
    間取図(平面図)
    間取図(平面図)

    2階

    10.6万円

    (管理費等:10,000円)

    3万円/
    -/
    -

    1LDK

    40.94㎡

    詳細を見る お問合せ(無料)
    • 角部屋
    • バス・トイレ別
    • ペット相談可
    • 2階以上
    • 即入居可
    間取図(平面図)
    間取図(平面図)

    3階

    10.8万円

    (管理費等:10,000円)

    3万円/
    -/
    -

    1LDK

    40.94㎡

    詳細を見る お問合せ(無料)
    • 角部屋
    • バス・トイレ別
    • ペット相談可
    • 2階以上
    • 即入居可
  • 賃貸マンション ワコーレ舞子海岸通

    外観

    賃料: 18万円

    兵庫県神戸市垂水区海岸通

    山陽電鉄本線 霞ヶ丘駅 徒歩7分
    JR山陽本線 舞子駅 徒歩10分
    JR山陽本線 垂水駅 徒歩14分

    築9年(2016年04月築)

    掲載物件 1

    間取り図 賃料(管理費等) 敷/礼/保 間取り
    専有面積
    お気に入り
    間取図(平面図)
    間取図(平面図)

    4階

    18万円

    (管理費等:10,000円)

    18万円/
    36万円/
    -

    3SLDK

    76.1㎡

    詳細を見る お問合せ(無料)
    • 南向き
    • 角部屋
    • バス・トイレ別
    • 2階以上
  • 賃貸マンション フェルティプラザ垂水・丘の町

    外観

    賃料: 10.5万円

    兵庫県神戸市垂水区小束山本町3丁目

    神戸市営地下鉄西神山手線 学園都市駅   バス10分 「東多聞」 徒歩5分
    JR山陽本線 垂水駅 バス15分東多聞 徒歩5分
    神戸市営地下鉄西神山手線 学園都市駅 徒歩27分

    築26年(1999年10月築)

    掲載物件 1

    間取り図 賃料(管理費等) 敷/礼/保 間取り
    専有面積
    お気に入り
    間取図(平面図)
    間取図(平面図)

    5階

    10.5万円

    (管理費等:10,000円)

    -/
    -/
    -

    3LDK

    76.45㎡

    詳細を見る お問合せ(無料)
    • 南向き
    • バス・トイレ別
    • 2階以上
    • 即入居可
  • 賃貸マンション ShaMaison Gardens 垂水駅前

    外観

    賃料: 11.2万円14.5万円

    兵庫県神戸市垂水区仲田1丁目

    JR山陽本線 垂水駅 徒歩5分
    山陽電鉄本線 山陽垂水駅 徒歩5分
    山陽電鉄本線 霞ヶ丘駅 徒歩12分

    新築(2025年05月築)

    掲載物件 2

    間取り図 賃料(管理費等) 敷/礼/保 間取り
    専有面積
    お気に入り
    間取図(平面図)
    間取図(平面図)

    2階

    11.2万円

    (管理費等:11,000円)

    3万円/
    -/
    -

    1LDK

    52.73㎡

    詳細を見る お問合せ(無料)
    • 角部屋
    • バス・トイレ別
    • ペット相談可
    • 2階以上
    • 即入居可
    間取図(平面図)
    間取図(平面図)

    3階

    14.5万円

    (管理費等:11,000円)

    3万円/
    -/
    -

    2LDK

    52.61㎡

    詳細を見る お問合せ(無料)
    • バス・トイレ別
    • ペット相談可
    • 2階以上
    • 即入居可
  • 賃貸マンション ルネ神戸星陵台

    外観

    賃料: 12万円

    兵庫県神戸市垂水区星陵台4丁目

    JR山陽本線 垂水駅   バス7分 「星陵高校前」 徒歩1分
    JR山陽本線 垂水駅 徒歩25分
    JR山陽本線 舞子駅 バス15分県商前 徒歩3分

    築10年(2015年03月築)

    掲載物件 1

    間取り図 賃料(管理費等) 敷/礼/保 間取り
    専有面積
    お気に入り
    間取図(平面図)
    間取図(平面図)

    5階

    12万円

    (管理費等:15,000円)

    12万円/
    24万円/
    -

    4LDK

    101.85㎡

    詳細を見る お問合せ(無料)
    • 角部屋
    • バス・トイレ別
    • 2階以上
    • 即入居可
  • 賃貸マンション 神戸市垂水区狩口台マンション

    賃料: 7.3万円

    兵庫県神戸市垂水区狩口台6丁目

    JR山陽本線 朝霧駅 徒歩8分
    山陽電鉄本線 西舞子駅 徒歩12分
    山陽電鉄本線 大蔵谷駅 徒歩22分

    築34年(1990年12月築)

    掲載物件 1

    間取り図 賃料(管理費等) 敷/礼/保 間取り
    専有面積
    お気に入り

    5階

    7.3万円

    (管理費等:1,500円)

    21.9万円/
    -/
    -

    3LDK

    67.79㎡

    詳細を見る お問合せ(無料)
    • 角部屋
    • バス・トイレ別
    • 2階以上
  • 賃貸アパート メゾン・ド・カルムⅥ(204)

    外観

    賃料: 8.1万円

    兵庫県神戸市垂水区名谷町

    JR山陽本線 垂水駅   バス15分 「東名谷」 徒歩3分
    山陽電鉄本線 山陽垂水駅 バス15分東名谷 徒歩3分

    築5年(2020年09月築)

    掲載物件 2

    間取り図 賃料(管理費等) 敷/礼/保 間取り
    専有面積
    お気に入り

    2階

    8.1万円

    (管理費等:2,300円)

    -/
    8.1万円/
    -

    2LDK

    62.5㎡

    詳細を見る お問合せ(無料)
    • 角部屋
    • バス・トイレ別
    • 2階以上

    2階

    8.1万円

    (管理費等:2,300円)

    -/
    8.1万円/
    -

    2LDK

    62.5㎡

    詳細を見る お問合せ(無料)
    • 角部屋
    • バス・トイレ別
    • 2階以上
  • 賃貸アパート メゾン・ド・カルムⅥ(101)

    外観

    賃料: 7.4万円8.1万円

    兵庫県神戸市垂水区名谷町

    JR山陽本線 垂水駅   バス15分 「東名谷」 徒歩3分
    山陽電鉄本線 山陽垂水駅 バス15分東名谷 徒歩3分

    築5年(2020年09月築)

    掲載物件 1

    間取り図 賃料(管理費等) 敷/礼/保 間取り
    専有面積
    お気に入り

    1階

    7.4万円

    (管理費等:2,300円)

    -/
    7.4万円/
    -

    1LDK

    51.66㎡

    詳細を見る お問合せ(無料)
    • 角部屋
    • バス・トイレ別
  • 賃貸アパート Berusionnyamate(302)

    外観

    賃料: 6.05万円7.3万円

    兵庫県神戸市垂水区山手3丁目

    山陽電鉄本線 東垂水駅 徒歩7分
    JR山陽本線 垂水駅 徒歩14分

    築8年(2017年08月築)

    掲載物件 1

    間取り図 賃料(管理費等) 敷/礼/保 間取り
    専有面積
    お気に入り

    3階

    7.3万円

    (管理費等:2,300円)

    -/
    7.3万円/
    -

    1LDK

    53.34㎡

    詳細を見る お問合せ(無料)
    • バス・トイレ別
    • 2階以上
  • 賃貸アパート フリーデンハオス(102)

    外観

    賃料: 5.3万円

    兵庫県神戸市垂水区下畑町字井之谷

    JR山陽本線 須磨駅   バス20分 「下畑」 徒歩3分
    神戸市営地下鉄西神山手線 名谷駅 バス25分下畑 徒歩3分

    築20年(2005年02月築)

    掲載物件 3

    間取り図 賃料(管理費等) 敷/礼/保 間取り
    専有面積
    お気に入り

    1階

    5.3万円

    (管理費等:2,800円)

    -/
    5.3万円/
    -

    1LDK

    47.05㎡

    詳細を見る お問合せ(無料)
    • 南向き
    • 角部屋
    • バス・トイレ別

    1階

    5.3万円

    (管理費等:2,800円)

    -/
    5.3万円/
    -

    1LDK

    47.05㎡

    詳細を見る お問合せ(無料)
    • 南向き
    • 角部屋
    • バス・トイレ別

    1階

    5.3万円

    (管理費等:2,800円)

    -/
    5.3万円/
    -

    1LDK

    47.05㎡

    詳細を見る お問合せ(無料)
    • 南向き
    • 角部屋
    • バス・トイレ別
  • 賃貸アパート フラン カルム(101)

    外観

    賃料: 5.4万円

    兵庫県神戸市垂水区東垂水1丁目

    山陽電鉄本線 滝の茶屋駅 徒歩12分
    山陽電鉄本線 東垂水駅 徒歩11分

    築15年(2009年11月築)

    掲載物件 2

    間取り図 賃料(管理費等) 敷/礼/保 間取り
    専有面積
    お気に入り

    1階

    5.4万円

    (管理費等:2,900円)

    -/
    7万円/
    -

    1K

    32.9㎡

    詳細を見る お問合せ(無料)
    • 角部屋
    • バス・トイレ別

    1階

    5.4万円

    (管理費等:2,900円)

    -/
    7万円/
    -

    1K

    32.9㎡

    詳細を見る お問合せ(無料)
    • 角部屋
    • バス・トイレ別
  • 賃貸アパート フリーデンハオス 参番館(201)

    外観

    賃料: 5.75万円

    兵庫県神戸市垂水区下畑町字中之谷

    JR山陽本線 須磨駅   バス20分 「下畑」 徒歩5分
    山陽電鉄本線 山陽須磨駅 バス20分下畑 徒歩5分

    築17年(2008年01月築)

    掲載物件 2

    間取り図 賃料(管理費等) 敷/礼/保 間取り
    専有面積
    お気に入り

    2階

    5.75万円

    (管理費等:3,500円)

    -/
    5.75万円/
    -

    2LDK

    61.64㎡

    詳細を見る お問合せ(無料)
    • 角部屋
    • バス・トイレ別
    • 2階以上

    2階

    5.75万円

    (管理費等:3,500円)

    -/
    5.75万円/
    -

    2LDK

    61.64㎡

    詳細を見る お問合せ(無料)
    • 角部屋
    • バス・トイレ別
    • 2階以上

195 部屋( 105 棟)

表示棟数

並び替え

サービスに関するお問合せ

  • WEBで物件の契約は可能ですか?
  • 急ぎでお部屋探しの相談をしたいのですが近くに店舗はありますか?